您的瀏覽器版本太低,將不能正常瀏覽。請升級 Internet Explorer或使用Google Chrome瀏(liú)覽(lǎn)器。
如果您在使用雙核瀏覽器,請切換到高速 / 極速 / 神速 核心。

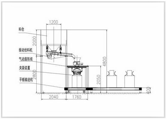
塊料噸袋包裝機

24小時熱線:0536-4387528

手(shǒu)機 :15318932736   

郵箱:aqboyangjx@126.com   2254886259@qq.com

地址:山(shān)東省濰坊市安丘市錦湖北路(lù)155號

微信二維碼.jpg

添加微信,立即(jí)溝通

16969783465705081.jpg

掃一掃,抖音欣賞


30.jpg
   
   BTK
塊料噸袋包裝(zhuāng)機(jī)——適合包裝各種塊狀物料,物料粒度在10-50mm,采用雙級控製閥門,包裝精度可控,自動計量稱重,自動完成(chéng)夾袋、升袋(dài)、定(dìng)量、落袋、鬆袋、脫袋功能。稱重方式(shì)可以根據粒(lì)度選為上(shàng)部稱(chēng)重和下部稱(chēng)重,適合於流動性較好的(de)物料。


    BTK塊料噸袋包裝機技術參數

    工作能力:10-35bag/h
    包裝規格:500kg/bag,1000kg/bag,2000kg/bag
    精度(dù)等(děng)級(jí):≤0.5%
    電源電壓:380VAC 50Hz
    電源功率:5KW
    氣源壓力:0.5-0.8MPa
    消耗氣量:0.02m3/sec
    除塵風量:1500-3000 m3/h
    溫(wēn)度範圍(wéi):-10-40℃
    相對濕度:≤80%


塊料噸袋包裝機1.jpg



 

為爭做智能裝備(bèi)製造
行業帶頭人一(yī)路奮進
一鍵
通話
榴莲视频污污版-榴莲视频黄色-榴莲视频APP污下载-榴莲视频污在线观看